DOPORUČUJEME
FILTRACE
    Nastavením přísné filtrace si výrazně snižujete možnost výběru produktů. Např. pokud sháníte obklad stěny, není vhodné filtrovat pouze produkty na stěnu, lze použít i dlažbu.
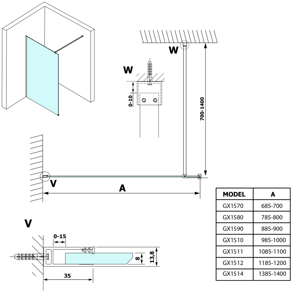
Jednodílná sprchová zástěna k instalaci ke stěně

Značka GELCO
Série VARIO
Výška 2000 mm
Série VARIO
Výška 2000 mm
Hloubka 1000 mm
Barva profilu Chrom - Leštěný hliník
Tvar Jednostěnná pevná
Typ výplně Nordic sklo
Úprava skla Coated glass
Tloušťka skla 8 mm
Coated glass:
Coated glass představuje jednu z nejkvalitnějších úprav skla sprchových koutů. Jedná se o chemickou sloučeninu směsi polymerů, která ve spojení s katalyzátory reaguje s křemičitanovými skupinami obsaženými ve skle. Na skleněných plochách tak vytváří souvislou vrstvu filmu, která vyplní mikropóry ve skle a odpuzuje vodu. Vlivem voděodpudivého filmu se kapky vody shlukují a stékají z povrchu skla. I když dojde k nepatrnému udržení menších kapek na skle, nedojde k chemické vazbě, sklo nebude narušeno a nezešedne.

Příslušenství

Podobné produkty